作者:海為用戶 王工
接觸工控行業時間不長,一開始我跟好多朋友一樣,都是網上看PLC品牌,例如西門子、三菱很有名氣。網絡、論壇三菱西門子的學習資料滿天飛。看到一些老師傅很得心應手地玩著三菱西門子PLC,我再也按耐不住了。沖著這些國際品牌PLC的名氣,我花了100多塊錢買了西門子、三菱PLC編程書籍,看著視頻自己開始自學,當時公司也沒有閑置的PLC給你試(主要是怕我這個出初學者給試壞了)。
2012年10月,無意中加入了PLC技術軍團,在軍團技術人員的指導下,注冊加入工控網,才認識了海為PLC,期間也跟同行(海為客戶)交流了海為PLC的特點,說跟三菱差不多。于是,我上海為官網,下軟件,編程序,做仿真。發現海為PLC指令符號像三菱的,軟件編程結構像西門子的。寫了一段程序,發現仿真很方便,編程軟件和仿真軟件集成一體,用起來很方便,非常適合初期學習PLC朋友使用。無奈沒有PLC機子,沒深入學習使用該軟件。
2013年10月,我看到工控網PLC版塊有海為PLC試用活動,于是準備資料,申請了一款S16M0T型PLC。我在周末發送的申請資料,周一就有海為工作人員反饋信息說審核通過且已經發貨。感覺大公司的服務真不錯,做事雷厲風行,講究效率。
言歸正傳,下面講下本次的應用實例:海為(Haiwell)在烘干機烘干溫度控制上的應用。
香菇烘烤工藝流程:烘干室溫度升到35℃時,才可以將香菇入室烘干。烘干時必須先低溫,然后逐漸升高溫度。通常一小時增溫1-3℃,最高溫度應控制在70~75℃。一般要求35-40℃下烘烤6小時,40-60℃下烘烤8-10小時,60℃條件下烘烤2小時。要求設計方便工作人員隨時設定溫度,啟動加熱及停止加熱。
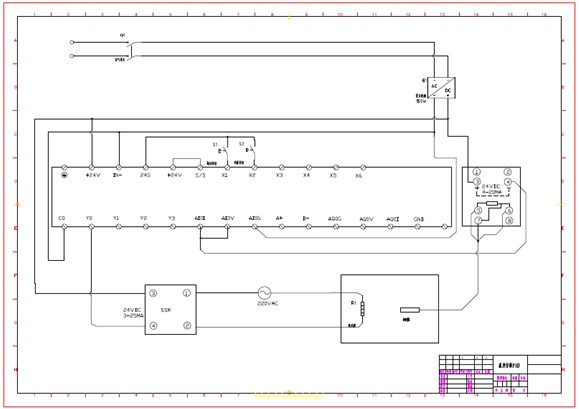
根據要求,用觸摸屏做上位機,S16M0T控制固態繼電器加熱器,溫度檢測用PT100加溫度變送器。溫度波動要求不高,直接采用模糊溫度控制FTC指令。

圖1 電氣原理圖

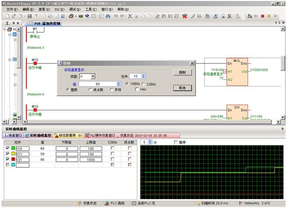
圖2 軟件調試圖

圖3 配電安裝近圖
圖4 配電安裝圖

圖5 溫度監視圖

圖6 溫度監視圖
下面談談試用感受吧,描述不當的地方還請同行們及海為技術人員指正。
優點:
1、軟件小巧,安裝方便。
軟件安裝文件不足20M,系統兼容性強,安裝快捷方便。不像其他品牌PLC軟件,動輒上百兆的安裝文件。
2、軟件界面友好,操作方便。
軟件菜單簡潔明了,編程、注釋輸入方便。打開項目管理器后,程序項目分程序,表格,PLC硬件配置成樹形目錄,方便了編程操作。打開的主程序,子程序,中斷程序,PLC硬件配置等在編輯區靈活切換。另外,在查看菜單中,打開PLC資源,可以在項目管理器中對海為PLC的內部資源一覽無余,基本不必翻看技術手冊。
3、軟件集成了仿真功能。
編程后,無需其他設置,即可啟動仿真。可視化的仿真界面,方便編程人員在沒有聯機的情況下檢測程序中的問題。
4、強大的幫助文件
在編程過程中,若遇到指令應用問題,只要光標定該指令處,按F1,幫助功能就可以打開幫助文件,而且直接定位到相關的指令分析,并且配有海為工程師的例程,快速地幫助用戶理解指令功能及應用。
建議:
軟件方面:
1、聯機監控時,PLC斷電會在仿真窗口顯示通訊超時,建議直接彈出對話框或者警報。
2、項目管理其中,表格打開后,像程序一樣,能在編輯區通過標題欄切換就更方便了。
3、建議小型機設計地薄一點、如果能帶模擬量就更好了。
4、建議編程快捷圖標放在靠中間位置,方便快速編程。(我試了幾次沒法拖動)
硬件方面:
1、小型機(10點以內)如果能做得更薄一些,且帶模擬量輸入輸出就更好了。
2、建議下載線做成USB型,方便廣大筆記本用戶。
非常感謝海為提供的這次PLC試用機會,祝愿海為越做越強。
海為公眾號
海為云APP
廈門海為科技有限公司
0592-3278716 (技術) | 4000-360-362 (商務)
海為總部:廈門市集美區軟件園三期C03棟13-14層 | 制造中心:廈門市翔安區火炬高新區(翔安)產業區垵邊南路336-2號4樓